Property Detail

485 8 th

Shandon CA 93461

$675,000

Status: Active

Property Details

Description

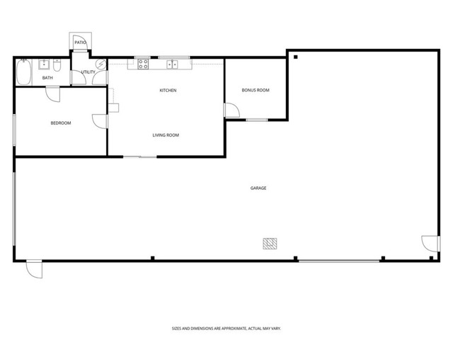
Unique 10-acre investment property located in Shandon, walking distance to the town of Shandon and just a 24 minute drive to downtown Paso Robles. This flat, rectangular, fully fenced parcel offers excellent flexibility for possible agriculture uses, storage, or future custom home or modular home. Key improvements include a 3,000± sq. ft. enclosed agricultural building with two roll-up doors, allowing large size or regular size vehicle or RV storage. The building is serviced with electricity and contains a 700± sq. ft. apartment (kitchen, living room, bedroom, bathroom, bonus room, mudroom, washer/dryer hookups), offering immediate livability or on-site manager housing. The property features two wells: one producing approximately 14 GPM into a 5,000-gallon storage tank with booster system, and a second well positioned to support potential subdivision. This location provides convenient proximity to Shandon amenities (school, park, and market all within walking distance) while maintaining rural flexibility. The property is suitable for possible equipment storage, large or regular size vehicle storage, agricultural operations, or residential construction. Special financing available!

Map Location

Stowell & Associates

Stowell & Associates

CA DRE# 01397481
Inquire Now
admin Real estate 9:00 AM - 5:00 PM 9:00 AM - 5:00 PM 9:00 AM - 5:00 PM 9:00 AM - 5:00 PM 9:00 AM - 5:00 PM Closed Closed https://static.royacdn.com/Site-da8039ec-6ba3-4175-a4d4-208d29681a64/team_photo_new.jpg realtor # # # https://static.royacdn.com/Site-da8039ec-6ba3-4175-a4d4-208d29681a64/team_photo_new.jpg 10969556 9492465452 02054356 9497060426 01397481 9499030026 02077688 9495007057 01963052 7143173874 02224448 7146093424