Property Detail

8840 Morro Road

Atascadero CA 93422

$550,000

Status: Active

Property Details

Description

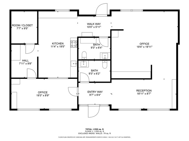
Freestanding commercial condo on Atascadero’s westside! Built in 2005, this detached unit offers over 1,400 sq. ft. with two ADA-compliant restrooms, a private office, reception area, storage, breakroom, and a large open space (see attached floor plan). The property provides convenient access off Highway 41 West and is situated near other professional business offices, Atascadero Lake Park, and the Central Coast Zoo. Long-term lease in place.

Map Location

Stowell & Associates

Stowell & Associates

CA DRE# 01397481
Inquire Now
admin Real estate 9:00 AM - 5:00 PM 9:00 AM - 5:00 PM 9:00 AM - 5:00 PM 9:00 AM - 5:00 PM 9:00 AM - 5:00 PM Closed Closed https://static.royacdn.com/Site-da8039ec-6ba3-4175-a4d4-208d29681a64/team_photo_new.jpg realtor # # # https://static.royacdn.com/Site-da8039ec-6ba3-4175-a4d4-208d29681a64/team_photo_new.jpg 10969556 9492465452 02054356 9497060426 01397481 9499030026 02077688 9495007057 01963052 7143173874 02224448 7146093424