Property Detail

4716 Del Paso

Los Angeles CA 90032

$849,900

Status: Active

Property Details

Description

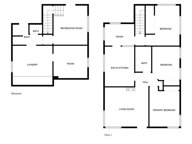
Beautiful hillside home on a quiet cul-de-sac with breathtaking city light views! Freshly painted interior with several newer windows, upgraded electrical panel (2022), and roof approx. 10 years old. Energy-efficient solar panels (to be assumed by buyer). Spacious backyard with room for gatherings, plus a long driveway that extends to the back with ample parking. Property includes an unpermitted basement conversion (2 rooms/1 bath/laundry room) and an unpermitted room next to the garage offering flexible space for guests, office, or more. A unique opportunity with comfort, updates, and endless potential. Buyer to verify all information & entire condition on their own due diligence & must satisfy themselves as to all aspects of this property. Close to freeways and shopping. Schedule a tour today!

Map Location

Stowell & Associates

Stowell & Associates

CA DRE# 01397481
Inquire Now
admin Real estate 9:00 AM - 5:00 PM 9:00 AM - 5:00 PM 9:00 AM - 5:00 PM 9:00 AM - 5:00 PM 9:00 AM - 5:00 PM Closed Closed https://static.royacdn.com/Site-da8039ec-6ba3-4175-a4d4-208d29681a64/team_photo_new.jpg realtor # # # https://static.royacdn.com/Site-da8039ec-6ba3-4175-a4d4-208d29681a64/team_photo_new.jpg 10969556 9492465452 02054356 9497060426 01397481 9499030026 02077688 9495007057 01963052 7143173874 02224448 7146093424