Property Detail

Calle Rancho Vista

Encinitas CA 92024

$1,599,000

Status: Active

Property Details

Description

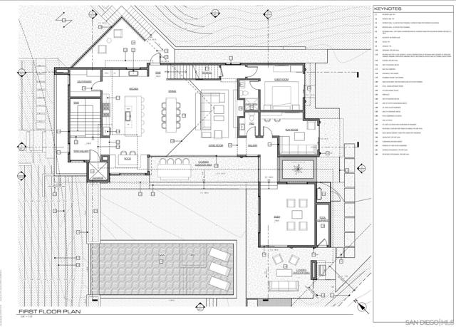
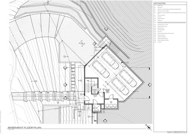
MOTIVATED SELLER. Seller is in escrow on a different property and has a tight window to close. Seller will look at all offers as long as his current up-leg property is in the picture. One of the Last Remaining Lots in Olivenhain – Canyon Views | Prime Location. Rare opportunity to build a custom estate on one of the final available lots in a private Olivenhain cul-de-sac, just 10 minutes from Cardiff Beach. This exceptional property offers stunning canyon views and over three years of completed work with the City of Encinitas. The proposed design features a 4,600 sq ft custom home with a 1,000 sq ft subterranean 4-car garage, 4 bedrooms (plus optional 5th), office, study, private elevator, oversized walk-in pantry, 250 sq ft primary closet, and a spacious backyard with a front-facing infinity edge pool. Progress highlights: Soils and ecological reports completed, grading and slope evaluations done, fire, water, and sewer services evaluated at the street Ready to enter structural and construction "doc" phase. With just one lot left in this coveted neighborhood, and the potential to break ground as soon as early 2026, this is a rare chance to create a signature home in one of North County’s most desirable communities.

Map Location

Stowell & Associates

Stowell & Associates

CA DRE# 01397481
Inquire Now
admin Real estate 9:00 AM - 5:00 PM 9:00 AM - 5:00 PM 9:00 AM - 5:00 PM 9:00 AM - 5:00 PM 9:00 AM - 5:00 PM Closed Closed https://static.royacdn.com/Site-da8039ec-6ba3-4175-a4d4-208d29681a64/team_photo_new.jpg realtor # # # https://static.royacdn.com/Site-da8039ec-6ba3-4175-a4d4-208d29681a64/team_photo_new.jpg 10969556 9492465452 02054356 9497060426 01397481 9499030026 02077688 9495007057 01963052 7143173874 02224448 7146093424