Property Detail

211 Via Dijon

Newport Beach CA 92663

$4,200,000

Status: Active

Property Details

Description

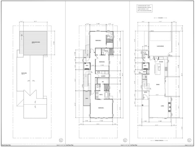
Build Your Dream Home on Lido Isle – Shovel-Ready Opportunity An exceptional opportunity awaits on Lido Isle to create your custom coastal residence without the delays of starting from scratch. The seller has completed all of the heavy lifting—architecture, city, HOA, and engineering approvals—so that the next owner can hit the ground running once the County records the new parcel number. This “shovel-ready” lot includes fully designed plans for a sophisticated 3-bedroom, 3.5-bath home featuring an elevator and rooftop deck, thoughtfully conceived to capture the relaxed yet refined essence of island living. Set within Newport Beach’s premier island enclave, this property offers convenient proximity to the Lido Marina Village, yacht club, tennis and pickleball courts, and the island’s private beaches. Enjoy the rare advantage of beginning your build immediately in one of coastal Orange County’s most desirable neighborhoods—an ideal opportunity to bring your vision to life on Lido Isle. Note: There is not a structure currently on the parcel. Offering is for a lot with plans to build, which will be approved once the APN is recorded. Prior lot was split into two parcels.

Map Location

Stowell & Associates

Stowell & Associates

CA DRE# 01397481
Inquire Now
admin Real estate 9:00 AM - 5:00 PM 9:00 AM - 5:00 PM 9:00 AM - 5:00 PM 9:00 AM - 5:00 PM 9:00 AM - 5:00 PM Closed Closed https://static.royacdn.com/Site-da8039ec-6ba3-4175-a4d4-208d29681a64/team_photo_new.jpg realtor # # # https://static.royacdn.com/Site-da8039ec-6ba3-4175-a4d4-208d29681a64/team_photo_new.jpg 10969556 9492465452 02054356 9497060426 01397481 9499030026 02077688 9495007057 01963052 7143173874 02224448 7146093424