Property Detail

9448 Calle Vejar

Rancho Cucamonga CA 91730

$699,000

Status: Active

Property Details

Description

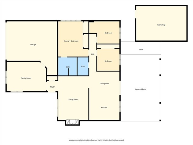
If you love woodworking, crafting or hobbies then this is the house for you!  On site is a 12 foot high, 432 square foot fully enclosed workshop.  The 18’x 24’ workshop has work benches, both 110 and 220 electrical outlets, 100 amp electrical sub panel, wall air conditioning unit and exhaust fan.  A bonus addition to this already amazing 1617 square foot single story home.  The main house offers 3 bedrooms, family room with plenty of space for a home office, a living room including a custom fireplace with wood mantle and bookcases.  You will find upgrades of crown molding, wide baseboards and plantation shutters throughout the home.  The main living space has engineered hardwood flooring.  The kitchen has been thoughtfully remodeled with storage in mind.  The cabinetry is soft closing in a color complementing every style.  The subway tile backsplash accents the appliances and the refrigerator is included.  The counters are a beautiful granite with oversized counter-bar.  There is a whole house water softener and the kitchen features a reverse osmosis unit for delicious drinking water and ice cubes. The floors are oversize 12”x 24” porcelain tile.  The bathrooms have been fully remodeled.  The primary room has an ensuite bathroom with dual sinks and a spa-like walk in shower.  There is a beautiful antique stained glass at the bath entry.  Two additional bedrooms on opposite sides of the hallway offer privacy for all parties.  The backyard is fantastic for entertaining.  The fully covered patio allows you to enjoy nature no matter the weather.  There is plenty of grass and greenery to create your own retreat.  The side yard has sheds for maximum storage, the garage comes with built in cabinets and storage racks. The home includes a solar lease to offset your utility costs.  You will find this home has been meticulously well taken care of and ready for you to call it home.  Schedule your private tour today!

Map Location

Stowell & Associates

Stowell & Associates

CA DRE# 01397481
Inquire Now
admin Real estate 9:00 AM - 5:00 PM 9:00 AM - 5:00 PM 9:00 AM - 5:00 PM 9:00 AM - 5:00 PM 9:00 AM - 5:00 PM Closed Closed https://static.royacdn.com/Site-da8039ec-6ba3-4175-a4d4-208d29681a64/team_photo_new.jpg realtor # # # https://static.royacdn.com/Site-da8039ec-6ba3-4175-a4d4-208d29681a64/team_photo_new.jpg 10969556 9492465452 02054356 9497060426 01397481 9499030026 02077688 9495007057 01963052 7143173874 02224448 7146093424