Property Detail

16001 Vermont #44

Gardena CA 90247

$739,000

Status: Active

Property Details

Description

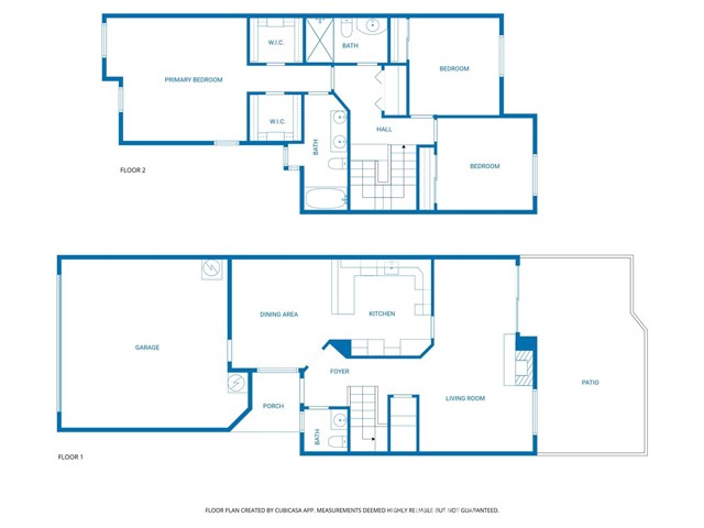
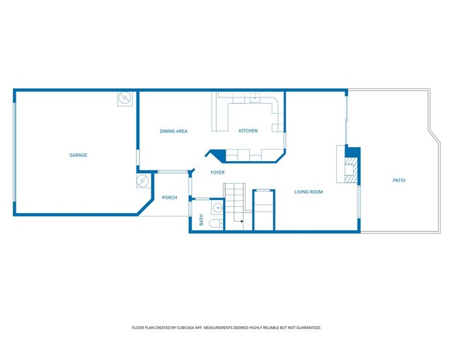
Turnkey remodeled 3-bedroom, 2.5-bath townhome in a desirable gated Gardena community. The home features a bright, welcoming layout with a spacious living and family area downstairs, complete with beautiful flooring and a cozy gas fireplace. A skylight over the stairs fills the space with natural light, and high vaulted ceilings upstairs create an open, airy feel. Large sliding doors open to a private backyard, perfect for relaxing, entertaining, or picking lemons from your own tree. The interior location ensures peace and quiet, away from street noise. The remodeled kitchen boasts modern white cabinetry, quartz countertops, and stainless-steel appliances, including a dishwasher. A convenient half bath is located on the main level, along with direct access to the attached two-car garage, which features built-in storage cabinets. All bedrooms are located upstairs, with the laundry area nearby for convenience. The primary suite offers two walk-in closets with custom shelving and a beautifully remodeled bathroom with dual sinks, a tub/shower combo, and a separate vanity area. Both bathrooms have been tastefully updated. Additional highlights include air conditioning for hot days, an upgraded electrical panel, and a gated community sparkling pool. Nothing to do but move in!

Map Location

Stowell & Associates

Stowell & Associates

CA DRE# 01397481
Inquire Now
admin Real estate 9:00 AM - 5:00 PM 9:00 AM - 5:00 PM 9:00 AM - 5:00 PM 9:00 AM - 5:00 PM 9:00 AM - 5:00 PM Closed Closed https://static.royacdn.com/Site-da8039ec-6ba3-4175-a4d4-208d29681a64/team_photo_new.jpg realtor # # # https://static.royacdn.com/Site-da8039ec-6ba3-4175-a4d4-208d29681a64/team_photo_new.jpg 10969556 9492465452 02054356 9497060426 01397481 9499030026 02077688 9495007057 01963052 7143173874 02224448 7146093424