Property Detail

5135 Taos

Montclair CA 91763

$549,900

Status: Active

Property Details

Description

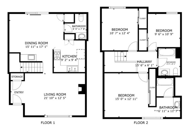
Updated Montclair Town Center Condo – Move-in Ready! Featuring 3 bedrooms and 3 bathrooms with 1,426 sq ft of living space, a large private patio, and a 2-car garage. The interior of this upgraded home includes vinyl plank flooring, textured ceilings, baseboards, and a newer HVAC system. The living room boasts a stacked stone fireplace and opens to the kitchen, which features a bar seating area, granite countertops, tile backsplash, white cabinetry, and appliances including a 4-burner cooktop, built-in oven, microwave, and dishwasher. A formal dining area and a half bathroom complete the main floor. Take the staircase with a wrought iron banister to the second floor, where you’ll find all 3 bedrooms, including the spacious primary bedroom with mirrored closets, a private bathroom, and a balcony with great views! A full-size hall bathroom serves the two secondary bedrooms. The fully fenced backyard patio is ready for the new owner's design and also provides access to the 2-car garage. Residents can also enjoy the community pool, spa, and playground. Low HOA fee and centrally located near schools, shopping, and more!

Map Location

Stowell & Associates

Stowell & Associates

CA DRE# 01397481
Inquire Now
admin Real estate 9:00 AM - 5:00 PM 9:00 AM - 5:00 PM 9:00 AM - 5:00 PM 9:00 AM - 5:00 PM 9:00 AM - 5:00 PM Closed Closed https://static.royacdn.com/Site-da8039ec-6ba3-4175-a4d4-208d29681a64/team_photo_new.jpg realtor # # # https://static.royacdn.com/Site-da8039ec-6ba3-4175-a4d4-208d29681a64/team_photo_new.jpg 10969556 9492465452 02054356 9497060426 01397481 9499030026 02077688 9495007057 01963052 7143173874 02224448 7146093424