Property Detail

15391 Rushmoor

Huntington Beach CA 92647

$1,180,000

Status: Active

Property Details

Description

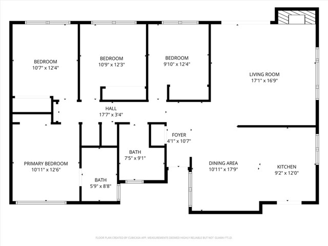
• Welcome to this exceptionally rare, cozy, income-producing single-story property in the heart of Huntington Beach. Nestled in a quiet neighborhood, this well-maintained residence offers stable cash flow, strong upside potential, and a prime Southern California location, just minutes away from Huntington Beach, shopping, dining, and entertainment (approximately 20 minutes from Disneyland and Knott's Berry Farm), with convenient freeway access. • Step inside to a functional layout that includes a generously sized living area, dining space, and well-appointed bedrooms. Existing finishes reflect original character, affording a thoughtful investor the chance to reposition through selective remodeling — kitchen upgrades, refreshed baths, enhanced flooring, and modern touches could drive strong returns. • Homes surrounding the Rushmoor area are consistently well-valued, providing confidence in asset stability and resale potential. Deep appeal to both renter and buyer markets, excellent long-term holding in a desirable coastal market.

Map Location

Stowell & Associates

Stowell & Associates

CA DRE# 01397481
Inquire Now
admin Real estate 9:00 AM - 5:00 PM 9:00 AM - 5:00 PM 9:00 AM - 5:00 PM 9:00 AM - 5:00 PM 9:00 AM - 5:00 PM Closed Closed https://static.royacdn.com/Site-da8039ec-6ba3-4175-a4d4-208d29681a64/team_photo_new.jpg realtor # # # https://static.royacdn.com/Site-da8039ec-6ba3-4175-a4d4-208d29681a64/team_photo_new.jpg 10969556 9492465452 02054356 9497060426 01397481 9499030026 02077688 9495007057 01963052 7143173874 02224448 7146093424