Property Detail

2745 Kitty Hawk

Palm Springs CA 92262

$1,099,000

Status: Active

Property Details

Description

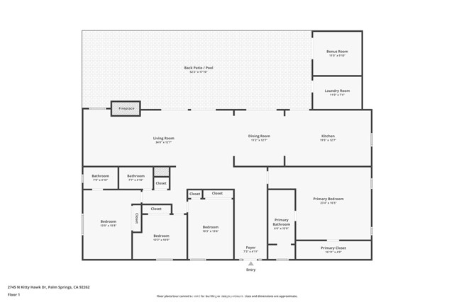
Welcome to 2745 Kitty Hawk – a professionally designed and fully permitted Palm Springs retreat that blends modern luxury with timeless comfort. This stunning property has been tastefully remodeled from top to bottom, with updates that outshine the competition. Step inside to discover porcelain tile flooring throughout the living spaces and luxury vinyl in all bedrooms, designed for both elegance and durability. The home features two master suites, each offering spa-like comfort. One master retreat boasts a walk-in closet, dual vanities, and an expansive master shower with multiple shower heads, creating a true desert sanctuary. The chef’s kitchen is a dream come true, complete with granite countertops, a dual-zone refrigerator, and a premium ZLINE stove, making every meal an elevated experience. The open floor plan connects the kitchen, dining, and living areas seamlessly—perfect for entertaining family and friends. Major upgrades include: New AC and HVAC system for year-round comfort, 100 MPH cool roof shingles for energy efficiency and peace of mind and Fully permitted renovations with quality craftsmanship throughout. Step outside to your resort-style backyard oasis. A redesigned pool with Pebble Tec finish and a Baja deck invites you to relax in the water instead of just beside it. The covered patio provides shade on warm days, while the side yard with BBQ area sets the stage for outdoor gatherings. An additional pool/game room extends your entertainment options year-round. The professionally landscaped front yard adds incredible curb appeal, while the oversized lot provides ample parking, RV access, and potential for an ADU. This home is ideal for a variety of buyers: full-time residents looking for a modern Palm Springs lifestyle, vacation homeowners wanting a turnkey escape, or investors seeking a high-demand property with short-term rental potential. Located minutes from shopping, dining, golf, hiking, and the vibrant Palm Springs downtown, this home offers the perfect balance of privacy, luxury, and convenience. Don’t miss your chance to own a property that has been professionally designed, thoughtfully remodeled, and built to impress—everything you’ve been waiting for in the desert.

Map Location

Stowell & Associates

Stowell & Associates

CA DRE# 01397481
Inquire Now
admin Real estate 9:00 AM - 5:00 PM 9:00 AM - 5:00 PM 9:00 AM - 5:00 PM 9:00 AM - 5:00 PM 9:00 AM - 5:00 PM Closed Closed https://static.royacdn.com/Site-da8039ec-6ba3-4175-a4d4-208d29681a64/team_photo_new.jpg realtor # # # https://static.royacdn.com/Site-da8039ec-6ba3-4175-a4d4-208d29681a64/team_photo_new.jpg 10969556 9492465452 02054356 9497060426 01397481 9499030026 02077688 9495007057 01963052 7143173874 02224448 7146093424