Property Detail

16 Woodpine

Irvine CA 92604

$1,079,900

Status: Active

Property Details

Description

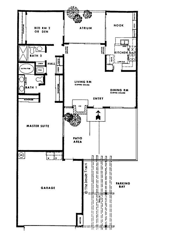
Welcome to this charming single-story 2 bedroom, 2 bathroom home offering approximately 1,250 square feet in the highly desirable Woodbridge community! Step inside this end unit home to a bright and airy floor plan filled with natural light, creating a warm and welcoming atmosphere throughout. The living room features high ceilings, a cozy fireplace, and sliding glass doors that open to a private patio—an inviting space to enjoy morning coffee, dine outdoors, or simply relax. The kitchen offers abundant cabinet and counter space and flows easily into the dining area, making it a comfortable setting for everyday meals or gathering with guests. The spacious primary bedroom includes two large closets and an en-suite bathroom with dual sinks. The home also includes a two-car garage. Ideally located directly across from a community park and pool, this home also provides access to Woodbridge’s exceptional amenities, including pools and spas, barbecue areas, scenic walking trails, and the beautiful Woodbridge Lagoon. With its prime location near top-rated schools, shopping, dining, and convenient freeway access, this home offers a wonderful opportunity to enjoy the best of Woodbridge living.

Map Location

Stowell & Associates

Stowell & Associates

CA DRE# 01397481
Inquire Now
admin Real estate 9:00 AM - 5:00 PM 9:00 AM - 5:00 PM 9:00 AM - 5:00 PM 9:00 AM - 5:00 PM 9:00 AM - 5:00 PM Closed Closed https://static.royacdn.com/Site-da8039ec-6ba3-4175-a4d4-208d29681a64/team_photo_new.jpg realtor # # # https://static.royacdn.com/Site-da8039ec-6ba3-4175-a4d4-208d29681a64/team_photo_new.jpg 10969556 9492465452 02054356 9497060426 01397481 9499030026 02077688 9495007057 01963052 7143173874 02224448 7146093424