Property Detail

912 Bonnie

Brea CA 92821

$1,468,888

Status: Active

Property Details

Description

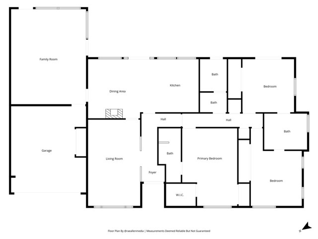
Desirable location at the end of a quiet Pleasant Hills Cul De Sac, this beautifully sweet warming and well-maintained 3BD 3BA single story home sits on an expansive 16,800 square foot huge lot and offers a warm, inviting layout ideal for comfortable everyday living and effortless entertaining. Rich hardwood floors, a sunlit bay window, and a dual sided stone fireplace enhance the formal living and dining rooms, while the spacious kitchen provides abundant cabinetry and a five burner range. The oversized family room opens directly to the backyard, creating a natural indoor-outdoor flow. The primary suite features a generous walk-in closet and a skylit, spa inspired bathroom, complemented by two additional bedrooms connected by a custom Jack and Jill bath and a third full bath with convenient outdoor access. The expansive backyard is perfect for gatherings, offering a pebble finish pool and spa, firepit, outdoor BBQ area, and dedicated pool bathroom. A long driveway leads to both an attached two car garage and an oversized detached two car garage or workshop, providing exceptional flexibility for parking, storage, hobbies, and potential larger size vehicle parking—an uncommon combination that adds meaningful convenience and versatility to the property. Property with an attached and detached garage are hard to find, this property is ideally positioned near schools, premier shopping malls, branded grocery stores, top franchise food outlets and quick access to the 57 & 60 freeway .Do not miss it ! Act Quick !

Map Location

Stowell & Associates

Stowell & Associates

CA DRE# 01397481
Inquire Now
admin Real estate 9:00 AM - 5:00 PM 9:00 AM - 5:00 PM 9:00 AM - 5:00 PM 9:00 AM - 5:00 PM 9:00 AM - 5:00 PM Closed Closed https://static.royacdn.com/Site-da8039ec-6ba3-4175-a4d4-208d29681a64/team_photo_new.jpg realtor # # # https://static.royacdn.com/Site-da8039ec-6ba3-4175-a4d4-208d29681a64/team_photo_new.jpg 10969556 9492465452 02054356 9497060426 01397481 9499030026 02077688 9495007057 01963052 7143173874 02224448 7146093424