Property Detail

2861 Serang

Costa Mesa CA 92626

$2,070,000

Status: Active

Property Details

Description

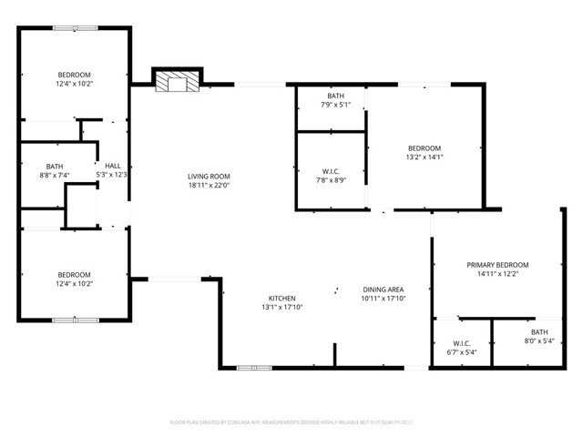
Do Builder and Design is pleased to present their newest renovated home in a beautiful Costa Mesa neighborhood. All thought was taken into the reformation of this home. There is a beautiful double entry door leading into an open concept living room with wainscotting and panel walls. An original wood burning rock fireplace with gas starter centers the room. New flooring throughout. A kitchen open to the living room and dining area. All top end appliances including a Bosch refrigerator, water softener under the sink, KitchenAid gas burner stove, dishwasher and hood vent above. Extra storage with access from both sides of the counter peninsula provide easy access and functionality. Specialized kitchen drawers. Pot filler above stove. Two bedrooms off the dining area with en suite bathrooms and walk in closets. Two other bedrooms on the west side of the home with a shared new hall bathroom. The large two car garage has new epoxy flooring, drop stairs to the attic, a water softener, forced air heater with central AC unit and stacked washer and dryer too. New gate faces the front providing access to the huge backyard. Ask about expansion possibilities for the primary bedroom on the east side and/or a detached ADU in the rear - plans and contractor are available.

Map Location

Stowell & Associates

Stowell & Associates

CA DRE# 01397481
Inquire Now
admin Real estate 9:00 AM - 5:00 PM 9:00 AM - 5:00 PM 9:00 AM - 5:00 PM 9:00 AM - 5:00 PM 9:00 AM - 5:00 PM Closed Closed https://static.royacdn.com/Site-da8039ec-6ba3-4175-a4d4-208d29681a64/team_photo_new.jpg realtor # # # https://static.royacdn.com/Site-da8039ec-6ba3-4175-a4d4-208d29681a64/team_photo_new.jpg 10969556 9492465452 02054356 9497060426 01397481 9499030026 02077688 9495007057 01963052 7143173874 02224448 7146093424