Property Detail

74 Argonne

Long Beach CA 90803

$1,650,000

Status: Active

Property Details

Description

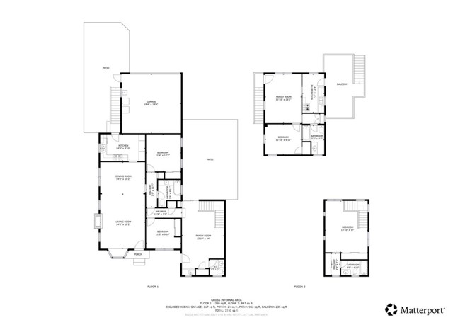
74 and 76 Argonne Avenue presents a rare opportunity in the heart of Belmont Shore, just steps from the sand in one of the most prized coastal locations in Long Beach. Currently configured as a beautifully updated duplex (EZ convert to 3 units), this 2,284 square foot property sits on a 4,500 square foot "double lot" and offers exceptional flexibility for both investors and owner occupants. The property has been thoughtfully refreshed while maintaining its classic 1939 character. Light filled interiors, updated kitchens and baths, spacious living areas, recessed lighting, and solid construction make this a true move in ready asset with strong bones and long term upside. The current two unit layout provides immediate income potential. For an owner user, this creates an ideal house hack scenario. Live in the front residence and rent the rear unit to significantly offset your mortgage while building equity in one of Southern California’s most desirable beach communities. For investors looking to maximize returns, the configuration offers a clear path to convert the property into a triplex. Adding a third unit could generate approximately $24,000 per year in additional rental income, creating meaningful upside in a supply constrained coastal market where proximity to the beach consistently commands premium rents. Location is everything here. Situated in Belmont Shore within the city of Long Beach, the property is moments from the beach, the bike path, marinas, and the shops and restaurants along 2nd Street. Coastal lifestyle, walkability, and consistent rental demand converge in this neighborhood. With the 2028 Los Angeles Olympics approaching, properties in prime coastal corridors like this are positioned to benefit from increased visibility, infrastructure investment, and heightened demand. Beach close income properties in established communities historically hold value and appreciate over time. Whether you are seeking an income producing asset, a live and rent opportunity, or a long term coastal investment with expansion potential, 74 Argonne delivers location, flexibility, and measurable upside just steps from the ocean.

Map Location

Stowell & Associates

Stowell & Associates

CA DRE# 01397481
Inquire Now
admin Real estate 9:00 AM - 5:00 PM 9:00 AM - 5:00 PM 9:00 AM - 5:00 PM 9:00 AM - 5:00 PM 9:00 AM - 5:00 PM Closed Closed https://static.royacdn.com/Site-da8039ec-6ba3-4175-a4d4-208d29681a64/team_photo_new.jpg realtor # # # https://static.royacdn.com/Site-da8039ec-6ba3-4175-a4d4-208d29681a64/team_photo_new.jpg 10969556 9492465452 02054356 9497060426 01397481 9499030026 02077688 9495007057 01963052 7143173874 02224448 7146093424